Izsoles rezultāts:
• izsoles datums: 03.02.2026.;
• tiesības slēgt nomas līgumu ieguva SIA ALEKSEJS HME, reģ. Nr. 40203603596;
• pretendenta piedāvātā nomas maksa 7,00 EUR/m2 mēnesī bez PVN.
Nomas līguma noslēgšana:
• Nomas līguma datums un Nr.: spēkā no 12.02.2026., RN-2026-145-li/4.6-5.
• Nomnieks: SIA ALEKSEJS HME, Reģ. nr. 40203603596.
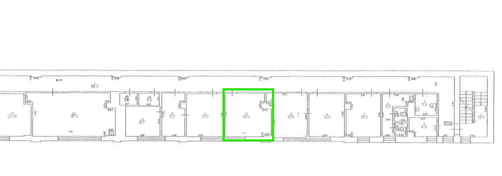
• Nomas objekts un platība: Centrāltirgus iela 1, Rīga, kadastra apzīmējums 0100 004 0071 053, 2. stāva telpu grupas 005 telpa Nr. 10, 15,9 m2 platībā.
• Nomas maksa mēnesī (bez PVN): 7,00 EUR par 1m2.
• Nomas līguma termiņš: 6 gadi no nomas līguma spēkā stāšanās dienas.
• Lietošanas mērķis: biroja telpas.
Izsoles statuss
Neaktīva
Izsoles veids
Nomas tiesību izsole
Objekta veids
Telpu noma
Izsoles rīkotājs
SIA „Rīgas nami”
Adrese
Centrāltirgus iela 1

Izsoles izsludināšanas datums: 2026. gada 27. janvāris.

Nomas tiesību pretendentu  pieteikšanās termiņš, laiks un vieta: no 2026. gada 27. janvāra līdz 2026. gada 2. februāra plkst.12.00, SIA "Rīgas nami", Rātslaukums 5 (ieeja no Svaru ielas), Rīga.

Izsoles datums, laiks: 2026. gada 3. februāra plkst. 11.00.